Description
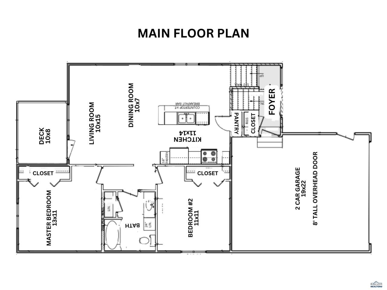
OPEN HOUSE, SUN, Nov 16, 12 - 3pm! Ennen Subdivision is Rapid City's newest neighborhood and conveniently located on the North end of Reservoir Road at HWY 44E! Minutes to everywhere! Anderson 100 windows, Landmark 30-yr Class III shingles on the roof, Smartside siding by LP, 95% efficient gas Furnace & Central A/C, Moen plumbing fixtures, floor coverings selected by Black Hills Interiors! Kitchen has soft-close doors & drawers and under-cabinet lighting. Garage opener is a Raynor with an app for your smartphone, blown in fiberglass insulation and spray foam at the rim joist, and a full LED lighting package. The basement is unfinished and may be finished for $39,700. Whirlpool stainless steel Microwave and Dishwasher are included. The matching Refrigerator & Range are $2,500. Completion is tracking for May 1, 2026.
-
2BEDS
-
0.18ACRES
-
1BATHS
-
01/2 BATHS
-
1,970SQFT
-
$174$/SQFT
Description
OPEN HOUSE, SUN, Nov 16, 12 - 3pm! Ennen Subdivision is Rapid City's newest neighborhood and conveniently located on the North end of Reservoir Road at HWY 44E! Minutes to everywhere! Anderson 100 windows, Landmark 30-yr Class III shingles on the roof, Smartside siding by LP, 95% efficient gas Furnace & Central A/C, Moen plumbing fixtures, floor coverings selected by Black Hills Interiors! Kitchen has soft-close doors & drawers and under-cabinet lighting. Garage opener is a Raynor with an app for your smartphone, blown in fiberglass insulation and spray foam at the rim joist, and a full LED lighting package. The basement is unfinished and may be finished for $39,700. Whirlpool stainless steel Microwave and Dishwasher are included. The matching Refrigerator & Range are $2,500. Completion is tracking for May 1, 2026.
© 2025 Black Hills Association of REALTORS® Multiple Listing Service. All rights reserved. The data relating to real estate for sale or lease on this web site comes in part from BHMLS. IDX information is provided exclusively for consumers' personal, non-commercial use and may not be used for any purpose other than to identify prospective properties consumers may be interested in purchasing. Information is deemed reliable but is not guaranteed accurate by the MLS or Dupont Real Estate Inc.. Data last updated: 2025-11-15T12:16:16.18.
