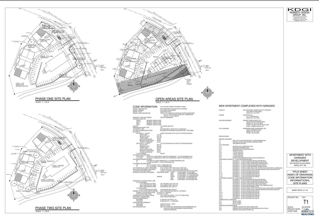
Description
LISTED BY BOBBY SUNDBY 605-209-2777. ZONED OFFICE COMMERCIAL, WHICH ACCOMMODATES MULTI FAMILY/APARTMENTS. POSSIBLE REZONE TO LIGHT IND. WHICH IS IN THE AREA AS WELL. HAVE YOU DREAMED OF OWNING AND/OR BUILDING YOUR OWN WEST-SIDE RAPID CITY APARTMENT PROJECT? THE OWNER MAY BE WILLING TO TRADE OTHER RESIDENTIAL OR COMMERCIAL PROPERTY. DIRECTLY ACROSS FROM FOUNTAIN SPRINGS CHURCH AND NEXT TO STRIDER. THIS LISTING INCLUDES LAND ALONG WITH APPROVED-BY-CITY/READY FOR BUILDING PERMIT LETTER ACCEPTING 28 UNIT APARTMENT PROJECT WITH COMPLETED ENGINEERING AND DESIGN. ONE SIXTEEN UNIT BUILDING, 12 UNIT BUILDING & 17 GARAGES. CITY WATER/SEWER. GREAT VIEWS AND LOCATION. BUILD BOTH BUILDINGS AT ONCE OR CONSIDER ONE AT A TIME. ALL TWO BEDROOM TWO BATH UNITS. SEE ATTACHED DRONE VIDEO. EXTENSIVE/COMPREHENSIVE PLANS AVAILABLE BY CONTACTING 605-209-2777. OR YOU MAY CHOOSE TO PURCHASE THE LAND AS OFFICE COMMERCIAL FOR YOUR BUSINESS. LISTED BY BOBBY SUNDBY 605-209-2777. BROKER OWNED. NOTE: THERE IS AN EXISTING OPTION TO PURCHASE ACCEPTED ON THIS PROPERTY AS OF JUN 18 2025. THIS PROPERTY IS ONLY ACTIVE TO THE DEGREE THE OPTION HOLDER WOULD RELINQUISH RIGHTS, WHICH IS BELIEVED THEY WOULD, IN THE EVENT ANOTHER ACCEPTABLE OFFER COMES FORWARD.
-
0BEDS
-
1.43ACRES
-
0BATHS
-
01/2 BATHS
School Ratings & Info
Description
LISTED BY BOBBY SUNDBY 605-209-2777. ZONED OFFICE COMMERCIAL, WHICH ACCOMMODATES MULTI FAMILY/APARTMENTS. POSSIBLE REZONE TO LIGHT IND. WHICH IS IN THE AREA AS WELL. HAVE YOU DREAMED OF OWNING AND/OR BUILDING YOUR OWN WEST-SIDE RAPID CITY APARTMENT PROJECT? THE OWNER MAY BE WILLING TO TRADE OTHER RESIDENTIAL OR COMMERCIAL PROPERTY. DIRECTLY ACROSS FROM FOUNTAIN SPRINGS CHURCH AND NEXT TO STRIDER. THIS LISTING INCLUDES LAND ALONG WITH APPROVED-BY-CITY/READY FOR BUILDING PERMIT LETTER ACCEPTING 28 UNIT APARTMENT PROJECT WITH COMPLETED ENGINEERING AND DESIGN. ONE SIXTEEN UNIT BUILDING, 12 UNIT BUILDING & 17 GARAGES. CITY WATER/SEWER. GREAT VIEWS AND LOCATION. BUILD BOTH BUILDINGS AT ONCE OR CONSIDER ONE AT A TIME. ALL TWO BEDROOM TWO BATH UNITS. SEE ATTACHED DRONE VIDEO. EXTENSIVE/COMPREHENSIVE PLANS AVAILABLE BY CONTACTING 605-209-2777. OR YOU MAY CHOOSE TO PURCHASE THE LAND AS OFFICE COMMERCIAL FOR YOUR BUSINESS. LISTED BY BOBBY SUNDBY 605-209-2777. BROKER OWNED. NOTE: THERE IS AN EXISTING OPTION TO PURCHASE ACCEPTED ON THIS PROPERTY AS OF JUN 18 2025. THIS PROPERTY IS ONLY ACTIVE TO THE DEGREE THE OPTION HOLDER WOULD RELINQUISH RIGHTS, WHICH IS BELIEVED THEY WOULD, IN THE EVENT ANOTHER ACCEPTABLE OFFER COMES FORWARD.
Related Properties
© 2025 Black Hills Association of REALTORS® Multiple Listing Service. All rights reserved. The data relating to real estate for sale or lease on this web site comes in part from BHMLS. IDX information is provided exclusively for consumers' personal, non-commercial use and may not be used for any purpose other than to identify prospective properties consumers may be interested in purchasing. Information is deemed reliable but is not guaranteed accurate by the MLS or Dupont Real Estate Inc.. Data last updated: 2025-11-14T21:16:17.177.
